בית טורו | כפר סבא – שווק בהצלחה!

למשרדים נוספים להשכרה בכפר סבא – לחץ כאן

בניין משרדים עצמאי בכפר סבא – בית טורו



בניין בעל 3 קומות וקומת מרתף, בשטח כולל של כ-4,720 מ"ר.

מטבחון ושירותים בכל קומה בשטחים הציבוריים, למעט קומת הקרקע.

נגישות מלאה לכלל חלקי הארץ.

41 מקומות חניה.

הושכרו כל השטחים הפנויים:

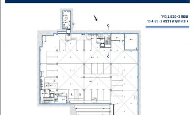
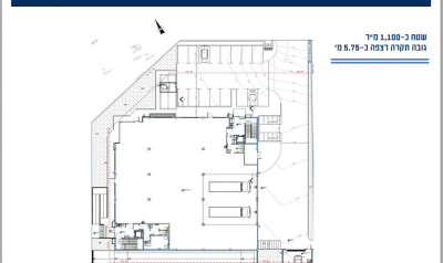
קומת מרתף: כ-1,620 מ"ר  |  קומת קרקע: כ-1,100 מ"ר  |  קומה ראשונה: כ-1,000 מ"ר ופטיו של כ-65 מ"ר  |  קומה שנייה: כ-1,000 מ"ר

שטח עבור אחסנה ולוגיסטיקה: 206 מ"ר

 

משווקי הפרויקט
מחלקת שיווק פרויקטים של קבוצת Natam
סוכן סניף השרון: דוד  david.l@natam.co.il

תכניות קומה

למשרדים נוספים להשכרה בכפר סבא – לחץ כאן

לא מצאת את מה שחיפשת? רוצה לקבל מידע נוסף?

ניתן להשאיר פרטים ונחזור אליך בהקדם.